ARCHITECTURE ET AUTONOMIE
Le studio autrichien d' architecture Penda travaille sur la conception d'une petite résidence dans la campagne allemande , intitulée ''yin & yang house''. Située près de la ville de Cassel, la propriété a été imaginée pour une petite famille qui veut vivre en autonomie. par conséquent, l'équipe de conception, dirigée par Chris Precht, transforme le toit de l'habitation en un jardin de légumes, d'herbes et de fruits qui garantira l'indépendance alimentaire des propriétaires. «Chaque fois que les architectes conçoivent un bâtiment, ils prennent une zone qui appartenait à la nature», disent les architectes de Penda. Nous essayons de redonner cet espace aux plantes sur le toit. en même temps nous fournissons un système de jardinage pour les propriétaires avec des serres en hiver et des rangées de planteurs pour le reste de l'année."

Penda Architects, ''yin & yang house'' Cassel , Allemagne, 2017, all images courtesy of Penda

Penda Architects, ''yin & yang house'' Cassel , Allemagne, 2017, all images courtesy of Penda

Penda Architects, ''yin & yang house'' Cassel , Allemagne, 2017, all images courtesy of Penda

Penda Architects, ''yin & yang house'' Cassel , Allemagne, 2017, all images courtesy of Penda
Deux toits entourent le jardin, canalisant l'eau de pluie vers le sol
lPenda Architects, ''yin & yang house'' Cassel , Allemagne, 2017, all images courtesy of Penda

Penda Architects, ''yin & yang house'' Cassel , Allemagne, 2017, all images courtesy of Penda

Penda Architects, ''yin & yang house'' Cassel , Allemagne, 2017, all images courtesy of Penda

Penda Architects, ''yin & yang house'' Cassel , Allemagne, 2017, all images courtesy of Penda

Penda Architects, ''yin & yang house'' Cassel , Allemagne, 2017, all images courtesy of Penda

Penda Architects, ''yin & yang house'' Cassel , Allemagne, 2017, all images courtesy of Penda
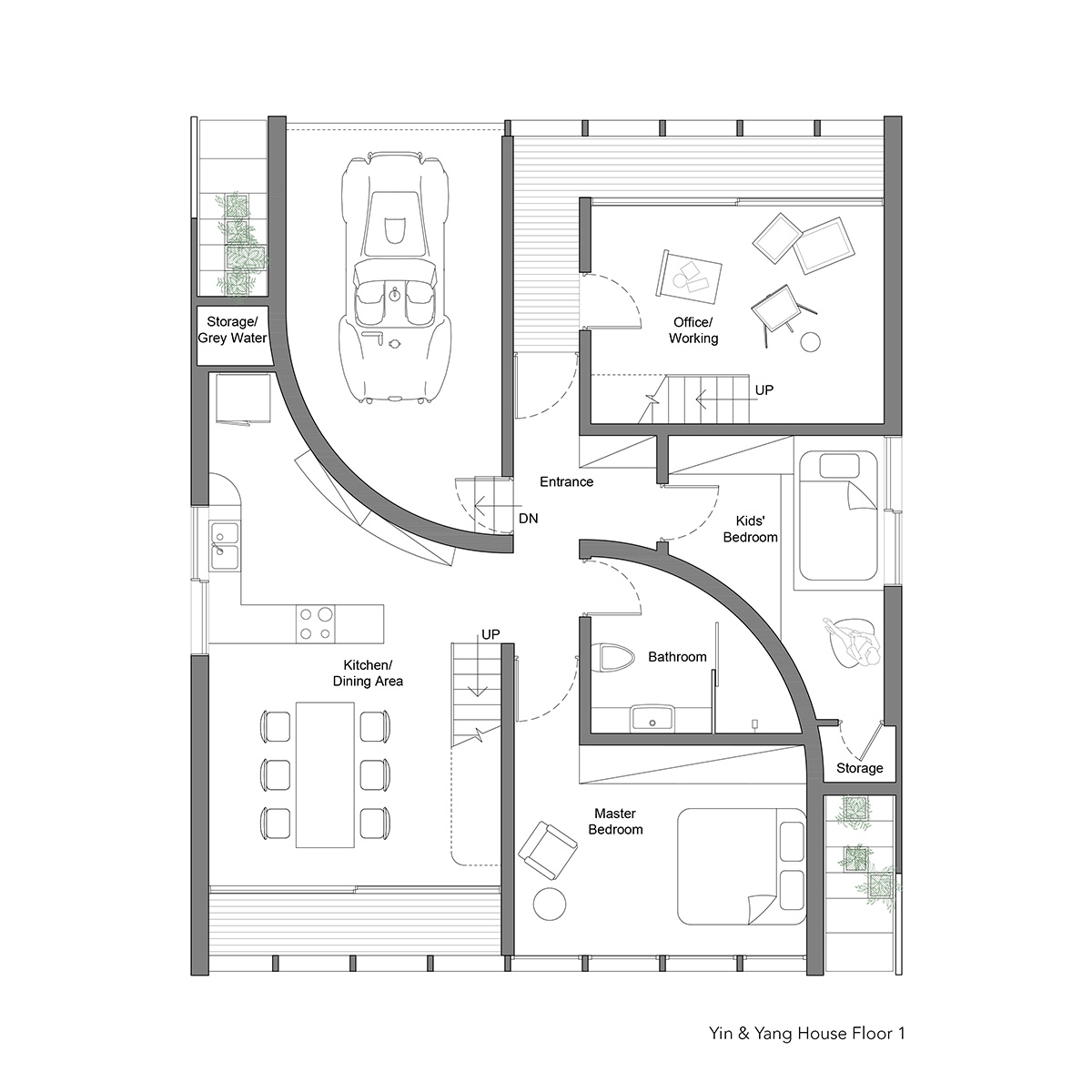
L’espace de travail avec bureau fait ainsi face à une cuisine ouverte sur la salle à manger. Le salon est situé sur une mezzanine au dessus de la cuisine. Cet espace de détente donne aussi accès au toit terrasse. De grandes fenêtres offrent de belles vues sur la nature environnante.

Penda Architects, ''yin & yang house'' Cassel , Allemagne, 2017, all images courtesy of Penda
La théorie du Yin et Yang a été découverte en Chine en même temps que la théorie des cinq éléments (vers le 9eme siècle avent J.C), certains enseignants chinois disent que la théorie du Yin et Yang serait encore plus ancienne. Le caractère chinois « Yin » (陰) servait à l’origine à désigner le versant d’une colline qui manquait de soleil. Il représente entre autres le noir, le bleu, le passif, l’intériorisé, le féminin, la lune, le sombre, le froid, le négatif…
En ce qui concerne le corps humain, le Yin est associé à la sensation de froid dans le corps, à l’hypoactivité des organes (nommé « le vide » , au prolapsus des tissus.
En ce qui concerne le corps humain, le Yin est associé à la sensation de froid dans le corps, à l’hypoactivité des organes (nommé « le vide » , au prolapsus des tissus.
Quant au caractère chinois « Yang » (陽), il servait à désigner le versant ensoleillé d’une colline. Il représente entre autres le blanc, le rouge, la chaleur, le masculin, le soleil, l’activité, la clarté, le positif…
On ne retrouve en Chine ni cette opposition du divin et de l’humain, de l’homme et de la nature, si caractéristique de notre Occident depuis les Grecs, ni cette vision du monde comme création née du rite et entretenue par lui, et cette indifférence à la temporalité qui sont propres à l’univers mental de l’Inde. Tout au contraire de l’Inde, les Chinois gardent un étonnant sens pratique et jugent de la valeur des religions à leur efficacité.
Jacques Gernet, Le Monde chinois, p. 34 ( BNF)
Jacques Gernet, Le Monde chinois, p. 34 ( BNF)
Les Wu Xing représentent cinq éléments, cinq mouvements qui régissent tous les phénomènes cosmiques et humains.
Les cinq éléments sont :
Bois (mu), Feu (huo), Terre (tu), Métal (jin), Eau (shui).
Plusieurs siècles avant notre ère, la théorie des cinq éléments vint s’ajouter au système du Yin et du Yang.
Les cinq éléments sont :
Bois (mu), Feu (huo), Terre (tu), Métal (jin), Eau (shui).
Plusieurs siècles avant notre ère, la théorie des cinq éléments vint s’ajouter au système du Yin et du Yang.
La théorie des cinq éléments étudie les mouvements cycliques du monde dont il faut saisir l’ensemble préalablement à l‘analyse de chacun de ces termes. Toute chose dans l’univers est le fruit d’un cycle de création et de destruction.Voici les 2 cycles qui se complètent et vivent ensemble simultanément.
Dans le cycle d’engendrement / création (yang)
"Xiang Sheng"
"Xiang Sheng"
Le bois engendre le feu,
Le feu engendre la terre (le feu réduit en cendres, la cendre se mêle à la terre),
La terre engendre le métal (les métaux naissent dans les entrailles de la terre),
Le métal engendre l’eau (tout métal peut devenir liquide et l’eau représente les liquides en général),
L’eau engendre le bois (l’eau est nécessaire à la croissance des végétaux).
Le feu engendre la terre (le feu réduit en cendres, la cendre se mêle à la terre),
La terre engendre le métal (les métaux naissent dans les entrailles de la terre),
Le métal engendre l’eau (tout métal peut devenir liquide et l’eau représente les liquides en général),
L’eau engendre le bois (l’eau est nécessaire à la croissance des végétaux).
Dans le cycle de domination / destruction (yin)
"Xiang Ke"
"Xiang Ke"
Le bois étouffe la terre
La terre sèche l’eau
L’eau éteint le feu
Le feu fond le métal
Le métal tranche le bois.
La terre sèche l’eau
L’eau éteint le feu
Le feu fond le métal
Le métal tranche le bois.
La ''yin & yang house'' de Penda Architects, s'articule à partir des mouvements des 5 éléments, on s'aperçoit que l'harmonie existe dans un état d'équilibre instable qu'il faut sans cesse réajuster. Les rythmes des saisons, le bois dont est construit la maison, l'eau récupérée par le toit, l'espace de vie et celui de travail connectés mais séparés, les ouvertures qui relient le dedans à la nature dehors et les végétaux qui y poussent sont des moyens naturels pour
optimiser les cycles ,éviter leurs dérèglements et rendre une famille autonome.
Penda Architects, ''yin & yang house'' project info:
name: yin & yang house by penda
studio: penda austria
team: chris precht, fei tang precht, dayong sun, zizhi yu
location: edersee, germany
year: 2017
size: 75 sqm / 807 sqf
credits: penda austria / diagram 1 by fernando neyra
Penda Architects, ''yin & yang house'' Cassel , Allemagne, 2017, all images courtesy of Penda
gif scale model








